This web page will provide you with a summary of the proposals. Similar information will also be provided at the public consultation event, which is being held on Thursday 12th February at 3pm-7pm at Moorfield Primary School.
If you have any comments, questions or feedback, you can email:
moorfieldschoolconsultation@iceniprojects.com where a member of the project team will review your email and provide a response where needed.
Welcome
Welcome to this webpage which sets out plans for the redevelopment of Moorfield Primary school.
The existing school buildings are coming to the end of their lifespan and do not meet the operational needs of the school. To allow the school to continue to offer a high-quality learning environment for children, including those with an increasing range of more complex needs, there is a fundamental requirement for a new and improved school building alongside improvements to the wider school grounds.
Therefore, it is proposed to demolish the existing school buildings and construct a fit for purpose modern facility.
The development is being funded by the Department for Education’s School Rebuilding Programme (SRP).
The project team is comprised of a range of specialists. The key stakeholders involved in the planning application are:
- The Department for Education – the Applicant
- Tilbury Douglas Construction – the contractor
- Dellis Williams Architects – the architect
- Iceni Projects – the planning consultant, managing the public consultation event.
The proposals
The proposal comprises the following:
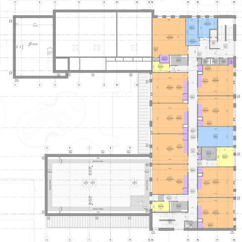
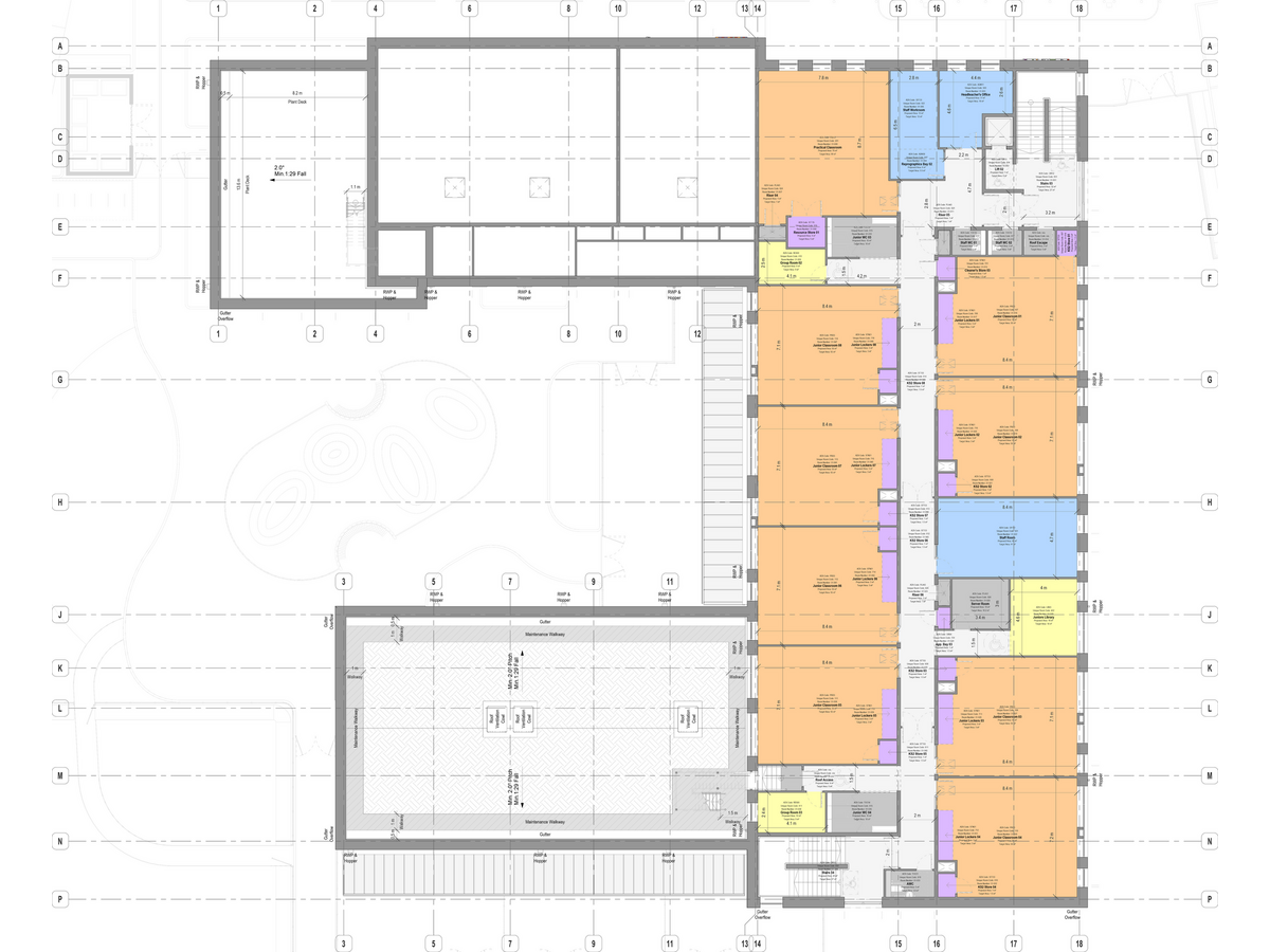
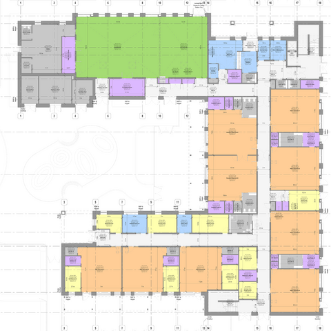
- A new part single and part two storey building which will accommodate the same capacity of students and teachers as the current school. The building will accommodate a specialist SEN unit.
- A new car park area with accessible parking bays and EV chargers included. Provision is also made for SEN pick-up and drop-off.
- A new Multi Use Games Area.
- A landscaped hard and soft play area, including an outdoor library area and canopy. This has been designed with input from the Primary Leadership Team (School Council).
- New site wide landscaping which will contribute towards enhanced biodiversity.
- The playing field to the rear of the site will not be impacted by the development. New built development is contained within the existing school site area.
- Provision has been made for community use of some areas of the school, in evenings and holiday periods.
The Design
- The scheme has been designed with the neighbouring site boundaries in mind, seeking to respect residential amenity where possible. Noise impact, scale and massing have all informed the siting of the building, its scale and massing and its ‘C shape’ design.
- The design has been subject to pre-application dialogue with Stockport Council, who are broadly supportive of the scheme.
- The material palette of the scheme will include two tones of neutral brickwork. Lighter bricks are used around teaching areas to give a bright, friendly feel, while darker bricks book-end these sections to add depth and visual interest. A bold use of red is introduced to define key entrance points across the building. At the two principal entrances, a red colour creates a striking, tactile surface that announces arrival and enhances the building’s identity matching the school's uniform and logo. Other entrances will include red spandrel panels within the door and window surrounds, helping to make each point of entry easy to identify. A series of feature colours drawn from the Moorfield School logo will animate the façade and create visual excitement for the children. These tones will serve as wayfinding cues for pupils.
- The energy strategy for the site will include PV panels and the use of ground source heat pumps to develop a net zero carbon in operation building.
Construction impact
- The privately-run pre-school (nursery) will remain operational throughout and is not impacted by the scheme.
- Temporary classroom accommodation will be provided for some of the children, as the construction phasing necessitates the demolition of some of the buildings at the beginning of the project. Details about the temporary classroom accomodation will be provided within the planning application package.
- The site will be a ‘live’ construction site, as Tilbury Douglas will construct the new building year-round, working around the active school environment. Construction management will be integral to the project. Detailed construction phasing plans and methodology information will be provided as part of the application.
The planning application
The planning application will be submitted to the Council in the coming weeks, once feedback from the public consultation has been reviewed. The planning application will be supported by the following documents:
- Air Quality Assessment
- Biodiversity Net Gain report
- Construction Environmental Management Plan
- Contaminated Land Survey
- Crime Impact Statement
- Design and Access Statement
- Detailed drawing package
- Ecological Reports
- Energy Statement
- Flood Risk Assessment
- Foul Drainage Assessment and Surface Water Drainage Assessment
- Lighting Impact Assessment/ Scheme
- Noise Impact Assessment
- Planning Statement
- Statement of Community Involvement
- Transport Assessment
- Travel Plan
- Tree Survey/ Arboricultural Implications Assessment
When the planning application is submitted, local residents in the vicinity of the site will be notified via letter from the Council. Once submitted, you will be able to find the planning application by visiting Stockport’s website and searching ‘Moorfield Primary School’ ( stockport.gov.uk/find-planning-applications)
Moorfield Primary School Redevelopment Proposals

